Skip to main content

Council approves concept design for outdoor pool in Mount Forest

Jordan Snobelen profile image
by Jordan Snobelen
Council approves concept design for outdoor pool in Mount Forest
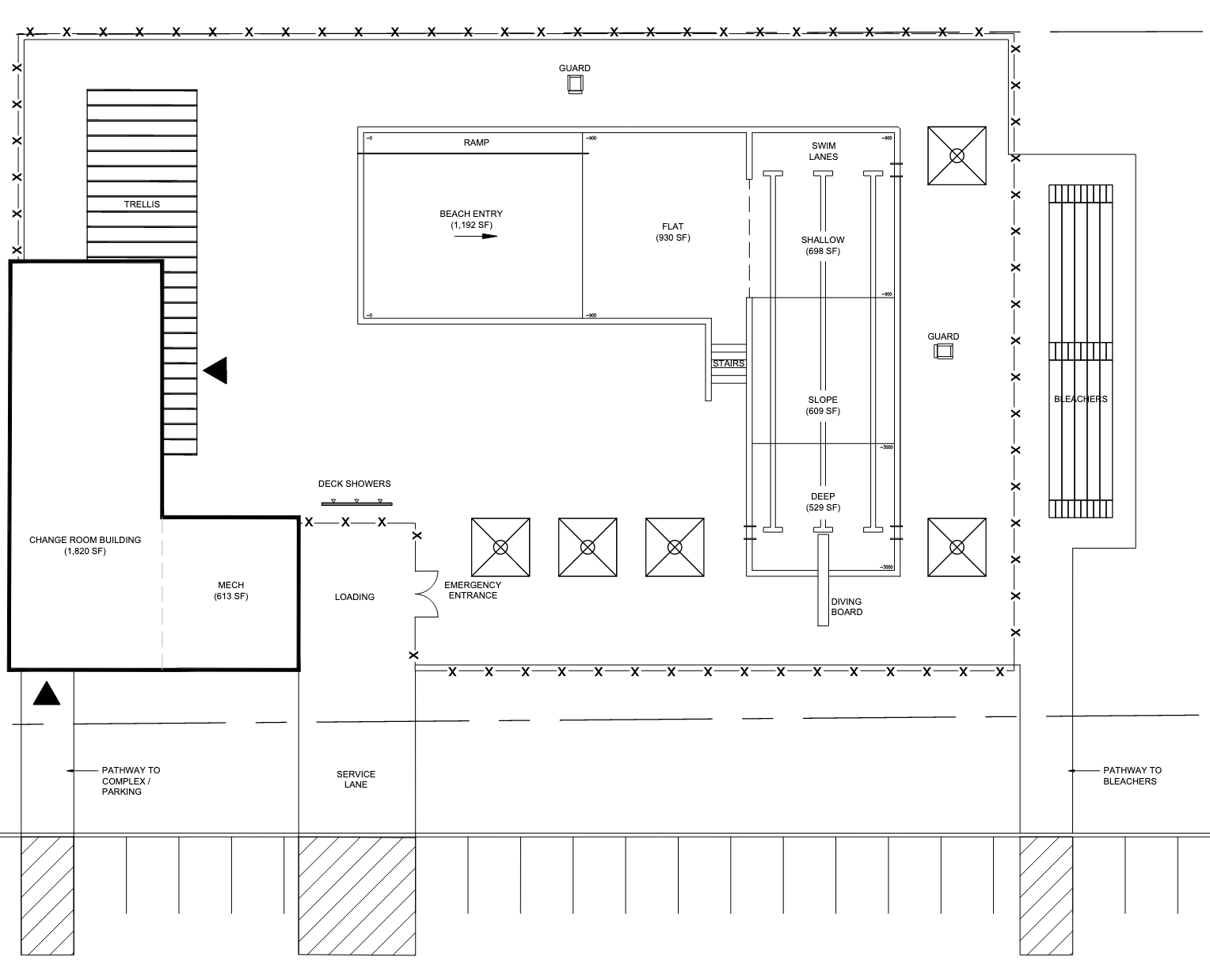
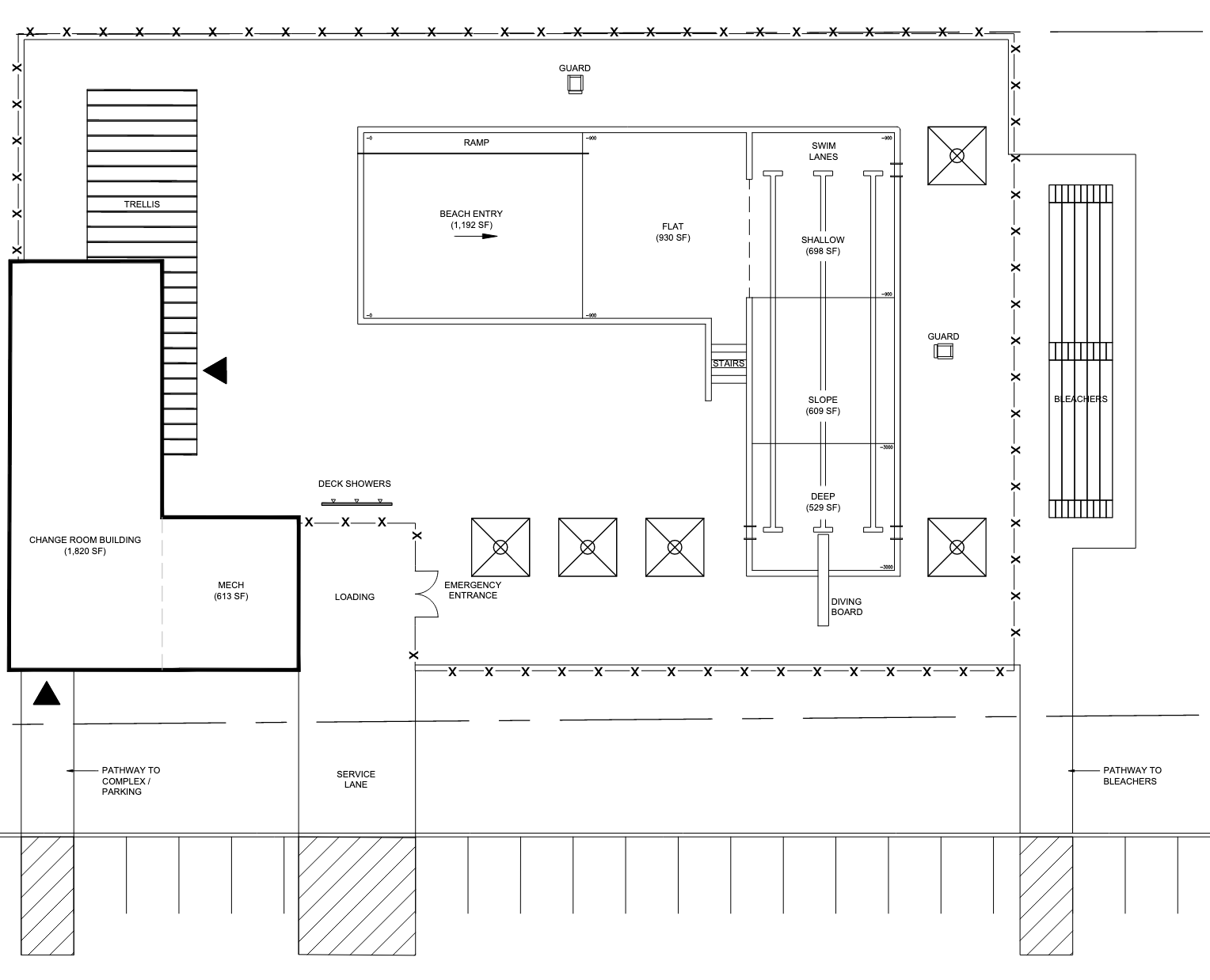
A design from Toronto-based architectural firm Tillmann Ruth Robinson Inc. shows a scaled back concept of a proposed outdoor pool in Mount Forest. Wellington North council approved the design, which will be sent to market for a costing estimate. Wellington North council agenda image

WELLINGTON NORTH – A scaled-back conceptual design for a proposed new outdoor pool in Mount Forest has been approved by Wellington North council.

The design includes a beach entry, flat area, a sloped swim area with a diving board, and three swim lanes.

Council discussion on Aug. 29 had familiar sticking points.

Councillor Sherry Burke, chair of the Mount Forest aquatics advisory committee (tasked with fundraising for pool enhancements), asked why the design omitted extras.

Township operations director Matthew Aston said the design is conceptual – one reduced to its most basic elements, allowing for a grasp on the base project cost.

And once an accurate dollar figure is known, enhancements can then enter the discussion.

[related]

Burke also questioned why the concept design did not have more than three swim lanes.

“My understanding to have a swim meet is you need five lanes,” she said, asking if additional lanes should be added.

“It’s just something that I know was discussed quite a bit with the senior community and those that do lap swims,” Burke explained.

Aston said none of the concepts presented and discussed since March had five swim lanes, and 121 respondents to a springtime survey of residents suggested the pool be designed to suit youth and children.

“The survey results were really favoured on building a pool for young people and teaching swimming safety and kind of youth-related activities,” Aston explained.

“That’s why the design that’s before you shows three lanes.”

Burke returned to the topic of enhancements, and emphasized that the committee needs to understand what members are fundraising for, before fundraising can begin in earnest.

Mayor Andy Lennox redirected discussion and said outside help is likely needed just to cover whatever the base cost of the pool ends up being, regardless of extras.

In July, council was told by Scott Robinson of the architectural firm designing the pool that the cost is likely to exceed $6 million.

Lennox said, “We need to have a finalized design … we’ve been spinning our wheels talking about this now for months.

“We have a design that we can take out for getting a price; I think we do that, and I think at the same time if we could ask staff to speak to people who do fundraising for a living to help give us some guidance on how to move this project forward.”

The mayor added, “Until we have a plan of how we’re going to make this happen for the community, we are kind of just going in circles, so I’d really like to see us commit to this design, move it forward … from where we are today to getting a pool in the ground for the people of Mount Forest.”

Council accepted a recommendation from Aston to approve the concept design.

The next step involves working with the architectural firm to create more detailed designs with dimensions, Aston explained in an email.

The design will be distributed for a “class ‘D’” pricing estimate, meaning probable cost should be accurate within 20 per cent either way.

Once the costing is completed, a design will return to council for further discussion.

Jordan Snobelen profile image
by Jordan Snobelen

Get Local News Delivered

Join our community of readers and get weekly updates on what matters most in Wellington County.

Success! Now Check Your Email

To complete Subscribe, click the confirmation link in your inbox. If it doesn’t arrive within 3 minutes, check your spam folder.

Ok, Thanks

Read More