Skip to main content

Townhouse development in Rockwood gets final approval from council

Paige Peacock profile image
by Paige Peacock
Townhouse development in Rockwood gets final approval from council
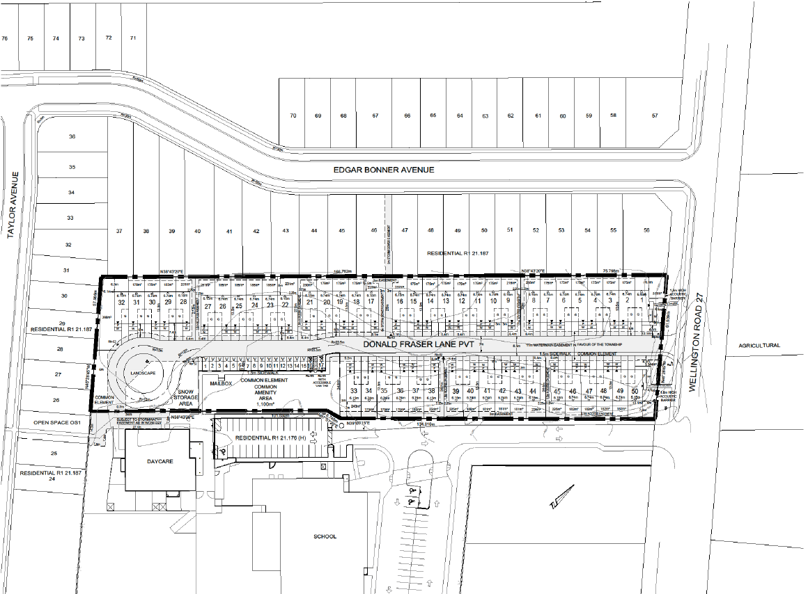
The approved site plan application for 5150 Wellington Road 27 includes 50 townhouse units, with 17 visitor parking spaces and an outdoor common amenity area. Screenshot from council agenda

ROCKWOOD – A townhouse development proposed in Rockwood has received final approval from Guelph/Eramosa council.

The development, approved on Sept. 6, includes 50 townhouse units, with 17 visitor parking spaces and an outdoor common amenity area at 5150 Wellington Road 27.

Each of the dwellings will share the costs of and maintenance for the common elements, which include an internal private road, amenity area and visitor parking, the report to council noted.

The townhomes will front onto the private road on Donald Private Lane, with their own driveway and garage.

[related]

The plan also incorporates pedestrian walkways that connect with a neighbouring subdivision and school property to allow for access to nearby features.

Officials pointed out in an August meeting there were a few administrative revisions to the site plan and the application was delayed.

“We’ve been through a few subdivisions now and I’m sure this thing is perfectly fine,” Mayor Chris White said at the time.

“The difficulty is we do run into those scenarios that aren’t absolutely clear.”

During the Sept. 6 meeting, MHBC planner Trevor Hawkins added there was a question that came up during the August meeting regarding the maintenance of the private road during construction.

He noted the site plan now has a section regarding maintenance that includes details "about the obligations of the owner" while the townhomes are being constructed.

"For example ... how they clean the road and scraping the road and maintaining the road in a manner that doesn’t negatively impact either the adjacent residential or institutional uses," Hawkins explained.

The revisions have since been made and council approved the proposal as presented on Sept. 6.

Paige Peacock profile image
by Paige Peacock

Get Local News Delivered

Join our community of readers and get weekly updates on what matters most in Wellington County.

Success! Now Check Your Email

To complete Subscribe, click the confirmation link in your inbox. If it doesn’t arrive within 3 minutes, check your spam folder.

Ok, Thanks

Read More