Skip to main content

Subdivision with over 800 units proposed for Arthur

New neighbourhood could nearly double Arthur’s population

Robin George profile image
by Robin George
Subdivision with over 800 units proposed for Arthur
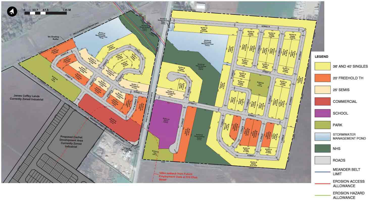
Tribute/Sorbara Arthur Holdings has applied for official plan and bylaw amendments to construct between 815 and 866 homes in northern Arthur. Council agenda image

KENILWORTH – A proposed subdivision in northern Arthur could house thousands of people – perhaps coming close to doubling the village’s current population of 3,300.

The development would be built on two lots that total 55 hectares (136 acres) on either side of Eliza Street. It includes between 815 and 866 homes (about 475 single detached, 110 semi-detached and 250 townhouses). 

Though they are officially within Arthur’s urban boundary, the properties are currently active farms. 

The developer, Tribute/Sorbara Arthur Holdings Inc., has applied to Wellington County for an official plan amendment to re-designate the lands from future development to residential.

The developer is also seeking a bylaw amendment from Wellington North to rezone the lands from future development to medium density residential, open space and natural environment, with site specific reductions on lot frontage, area, side yard setbacks, height and lot coverage.  

The township and county held a joint public meeting about the proposal at the Arthur and Area Community Centre on Jan. 13. No decisions were made at the meeting. 

The property currently contains a home and farm buildings that would be demolished. The surrounding land is agricultural to the east and west, industrial to the south, and both agricultural and industrial to the north. 

The draft plan of subdivision includes 13 new municipally-owned streets, 3.6 hectares of public parks, 2.6 hectares of natural heritage land, storm water management ponds and lands for municipal infrastructure including a well and pump station.

The proposed access to the site would be at Eliza and Macauley Streets. Developers are set to realign that intersection, at the township’s direction, to make it 90 degrees.  

The developer proposed sidewalks on both sides of the new streets, but the township’s peer review planning consultant, Montieth Brown, suggested this would not be necessary or efficient in a rural area, due to construction and maintenance costs. 

Upper Grand District School Board officials say five to six acres of land on the lot is needed for a future elementary school within the development.  

The developer updated its proposal to incorporate some feedback, including adding land for a school and relocating proposed residences further from the industrial land for noise buffering, and they intend to continue adapting the plan to incorporate further feedback, said the developer’s planning consultant Rachelle Larocque. 

Changes thus far have reduced the development’s size by about 100 units, she noted. 

Council concerns

Wellington North council expressed concerns about the amount of site-specific bylaw reductions requested. 

“We have a bylaw in place for a reason, so that our community can grow the way we want it to and with the space that people need for their own housing and their family, so I have big issues with this,” said councillor Steve McCabe. 

“The developer is looking for reductions in almost everything,” added councillor Lisa Hern. “I don’t support variance on all sides and lot coverage because I don’t believe that’s minor in nature.” 

Councillor Penny Renken suggested if the houses were smaller, they wouldn’t need a lot coverage reduction and would be more affordable. 

McCabe said he has a hard time imagining who would buy the homes, as there are not enough jobs in the community  that pay enough for people to afford them.

“We need housing for people that live here. We need employment land so that people can work here,” he said. 

Renken agreed, noting, “a larger house like this isn’t what they’re looking for – they can’t afford it – they need smaller houses.” 

Mayor Andy Lennox said he is concerned about the township’s ability to provide the necessary services to support the development, especially water and wastewater.

“I have grave concerns about the community’s ability to absorb that rate of growth, particularly on the infrastructure side of things,” he said. 

Lennox added he is also concerned about the number of variances requested, noting “there’s a lot more work that needs to be done with regard to this project before it can move forward.”

Water, wastewater

Arthur’s water and wastewater system is not currently able to accommodate the subdivision.  

Wellington North’s consulting engineers, Triton Engineering Services, predict the village’s population will approach 13,000 within the next 35 years (nearly four times its current size). 

The proposed development at Eliza and Macauley would make up about 20 per cent of that population, noted Triton engineer Dustin Lyttle. 

“This size of development is unprecedented in Arthur,” he said. 

The village’s current water supply is 2,255 cubic metres per day and engineers predict that, with another well, that could grow to 4,200m3 daily.

“Our current maximum day demand – so the amount of water that everybody in town uses … is about 1,500 metres cubed,” he said, and the proposed development would need about 700m3 per day, and another 818m3 is already allocated to other developments.  

Once the new well is up and running there will be enough capacity for the proposed development but not to accommodate other lands zoned future development. 

For water storage, the two towers in Arthur total about 1,300m3, Lyttle said. 

Currently, Arthur needs about 1,120m3. Once developments with existing water allocations are complete, this will grow to about 1,191.

The subdivision at Eliza and Macauley would bring that to about 1,820. 

The township is already planning to replace the village’s two water towers with one or two new, larger towers – one at Macauley and Wells streets and one north of the existing wastewater holding ponds. 

Wellington North is also in the midst of upgrading its wastewater treatment plant. The first phase of upgrades is already complete and increased daily capacity to 1,860m3. The second phase, which is not yet underway, is set to bring it up to 2,300.  

The current average daily flow of wastewater is about 1,300m3 per day, “so that leaves you with about 500 metres cubed a day left over,” Lyttle said. “You would never want to set yourself up to be operating at 100% capacity because then you would have no room for high flow events – so I’m not saying that there’s 500 metres cubed available to allocate, but that’s how much remains. 

“Currently we have allocated 155 metres cubed,” he said, and engineers predict the proposed development will bring the total daily flow up to 2,293 cubed metres. After phase two is completed, the village would be over capacity “and there would be nothing left over for any other development.” 

Expanding the treatment plant beyond phase two is complicated, Lyttle said, because treated wastewater currently goes into Conestogo Creek, which “has a very limited capacity to accept flow,” and the available options are costly and challenging.

For stormwater management, the creek running through the proposed subdivision would be used for discharge. 

“Full assessment of that creek would need to be undertaken to make sure that we’re not causing washouts, erosion issues, or downstream flooding of any private property,” Lyttle said. 

An Arthur resident at the public meeting asked who’d be paying for the water and wastewater upgrades – developers, or tax payers? 

Mayor Andy Lennox said “that sounds like a simple question but it doesn’t have a simple answer,” as both taxes and development charges will go towards different projects. 

Another resident asked about the timeline for building the water towers, and Lennox said no date has been set. 

A township staff member noted the towers should be complete before 2051.  

Robin George profile image
by Robin George

Get Local News Delivered

Join our community of readers and get weekly updates on what matters most in Wellington County.

Success! Now Check Your Email

To complete Subscribe, click the confirmation link in your inbox. If it doesn’t arrive within 3 minutes, check your spam folder.

Ok, Thanks

Read More