Skip to main content

Paramedics to continue responding from Hillsburgh fire station

Wellington Advertiser profile image
by Wellington Advertiser
Paramedics to continue responding from Hillsburgh fire station
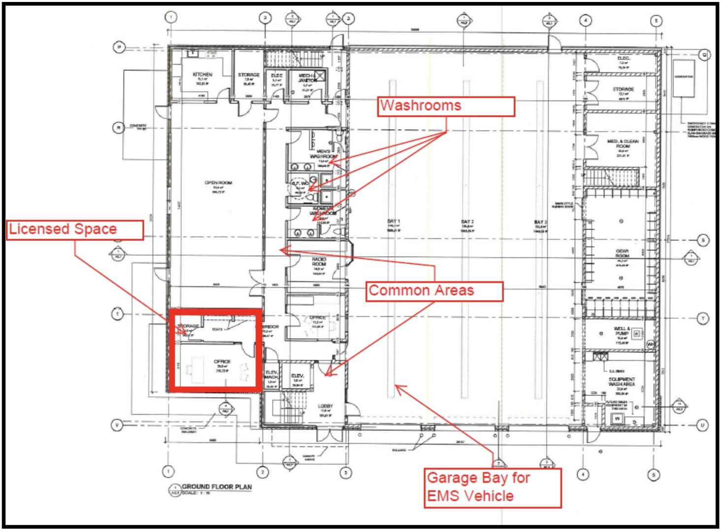
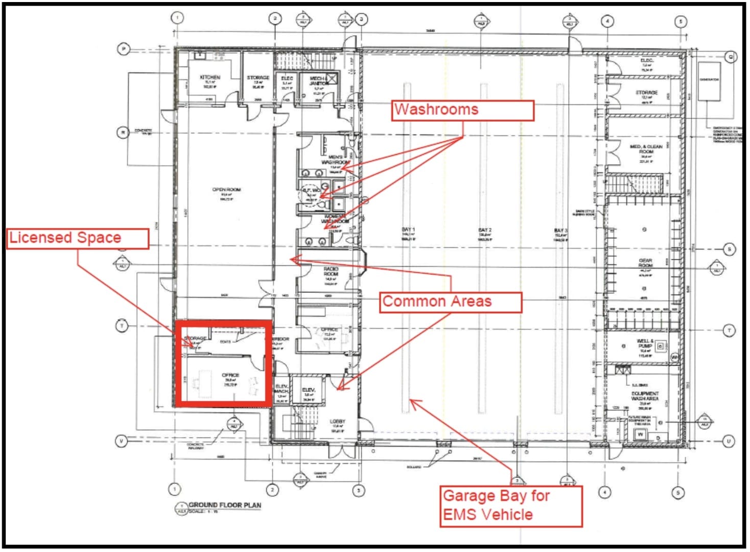
The Town of Erin and the City of Guelph have reached an agreement for the Guelph-Wellington Paramedic Service's continued use of Station 50 in Hillsburgh. A diagram included in the town's lease agreement illustrates the areas to which paramedics have access. Town of Erin March 23 agenda package

ERIN – The Town of Erin and the City of Guelph have reached an agreement for the Guelph-Wellington Paramedic Service's continued use of Station 50 in Hillsburgh.

The current lease expired at the end of March, and a new lease has been negotiated that will see paramedics responding from the Hillsburgh fire station over the next five years.

Because a lease wasn’t negotiated prior to the 2023 town budget, this year’s revenue collected by Erin from the City of Guelph, which runs the emergency medical service, will be counted as additional revenue for the town.

On March 23, Erin Fire Chief Jim Sawkins told council the town “settled” on a five per cent increase in rent during the first, third and fifth fiscal years of the lease agreement.

The monthly fee charged to Guelph will be:

  • $3,203 (tax-in) from 2023 to 2025;
  • $3,363 from 2025-27; and
  • $3,531 from 2027-28.

Roughly $200,000 will be charged to the city over the entire lease term.

Mayor Michael Dehn asked Sawkins if he’s happy with the paramedic service as a tenant.

Sawkins laughed, saying, “We’re good landlords.”

Wellington Advertiser profile image
by Wellington Advertiser

Get Local News Delivered

Join our community of readers and get weekly updates on what matters most in Wellington County.

Success! Now Check Your Email

To complete Subscribe, click the confirmation link in your inbox. If it doesn’t arrive within 3 minutes, check your spam folder.

Ok, Thanks

Read More