Skip to main content

Property adjustment requested for possible 17-unit Mount Forest apartment building

Jordan Snobelen profile image
by Jordan Snobelen
Property adjustment requested for possible 17-unit Mount Forest apartment building
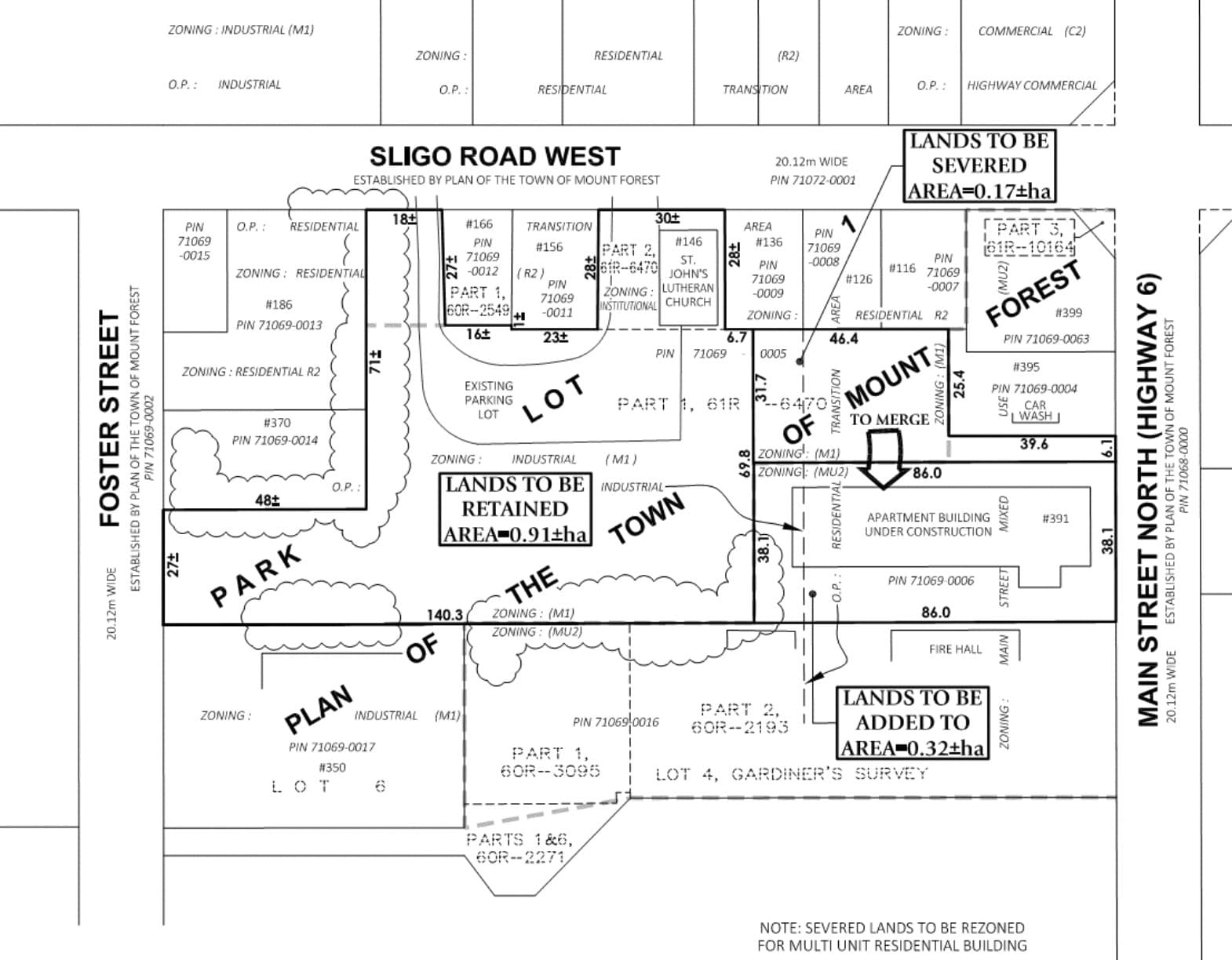
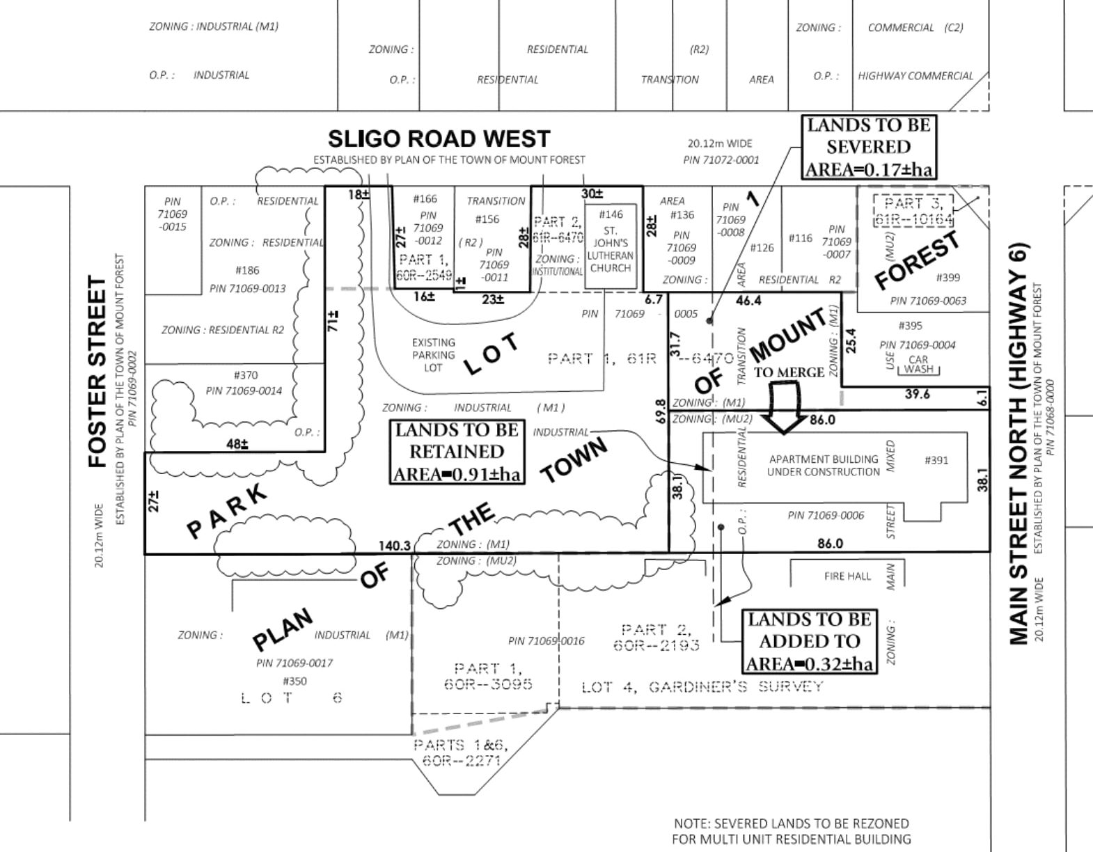
A sketch of the proposed lot line adjustment from Van Harten Surveying Inc. (Wellington North meeting agenda package image)

WELLINGTON NORTH – An application by St. John’s Evangelical-Lutheran Church to part ways with under an acre of their property reappeared before council here on Nov. 7.

The church seeks to sell the land – located in Mount Forest and bordered by Foster Street, Sligo Road West and Main Street North – for the potential development of a 17-unit apartment building.

In February, council supported a staff-recommended request to the county’s land division committee to defer a decision on the severance until some concerns could be addressed.

[related]

County senior planner Jessica Rahim said at the time township staff were concerned with a single point of entry and exit onto Main Street North and its inadequate size.

Citing the size of the potential development, township staff also raised concern with pedestrian and vehicle traffic on Main Street North, an already busy thoroughfare with an adjacent four-storey, 36-unit apartment building currently under construction beside the Mount Forest fire station.

On Nov. 7, a revised application came before council seeking a lot line adjustment, instead of the severance originally proposed.

The change came about from discussion between the township and the developer, W.T. Land Corporation, the same developer of the ongoing apartment build.

In a phone call with the Advertiser, chief building official Darren Jones explained the change allows for the lot to be merged with the property at 391 Main Street North, where the apartment build is taking place.

Because W.T. Land will have more property as a result, the entrance to the entire apartment building property can be made wider, solving an issue of the entrance being too narrow for emergency vehicles.

“The frontage of the two combined properties is huge by comparison, and then that driveway entrance can be in what used to be the side yard of the apartment building,” Jones explained.

The lot line adjustment works practically the same as a severance.

The only real difference is the separated church lot will not be a distinct parcel of land, but rather one attached/merged with the already existing apartment building property.

During the council meeting, Ward 2 councillor Sherry Burke said though she recognizes a need for apartment housing, she wanted to defer a decision until the ongoing apartment development was complete.

“I think if we add more homes in that area, there’s a potential for some traffic impact and I just think that we would do the community a real disservice until we have an opportunity to see what that development’s going to look like,” Burke said.

But council doesn’t have a say just yet, Mayor Andy Lennox said, explaining council can merely offer comment on the application before it goes to the county’s land division committee for a decision.

All Burke’s suggestion would accomplish, Lennox said, would be to defer comments.

Burke then suggested asking for a traffic impact study.

“I would question the amount of traffic and the impact that 17 more units is going to put on that intersection in that area,” she said.

County senior planner Matthieu Daoust responded by saying the county committee would either endorse or not endorse a lot line adjustment, but council would have to address things such as a traffic study later on at a local level.

Any development on the merged lot would still have to go through standard development stages, including a zoning bylaw amendment, where council would have some decision-making power.

Main Street, also Highway 6, bisects Wards 1 and 2, with the property falling in councillor Dan Yake’s ward, but he was not present at the meeting.

A vote on a staff recommendation to support the lot line adjustment was carried with Burke opposed.

The application will appear before the county’s land division committee at its next meeting on Jan. 12.

Jordan Snobelen profile image
by Jordan Snobelen

Get Local News Delivered

Join our community of readers and get weekly updates on what matters most in Wellington County.

Success! Now Check Your Email

To complete Subscribe, click the confirmation link in your inbox. If it doesn’t arrive within 3 minutes, check your spam folder.

Ok, Thanks

Read More