Skip to main content

Minor variances approved for eight-unit stacked townhouses

Robin George profile image
by Robin George
Minor variances approved for eight-unit stacked townhouses
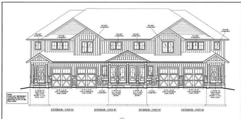
Wellington North council has approved four minor variances to permit developers to construct a row of stacked townhouses with eight units (four units on main floors and four in basements). Images from Wellington North council meeting agenda package

KENILWORTH – A row of stacked townhouses with eight units is coming to downtown Mount Forest.

Wellington North council has approved four minor variances to permit a developer to move forward with its plan for the townhouses, located on a 0.2-hectare (half-acre) lot at 279 Fergus St. S., within the primary urban centre of Mount Forest.

The minor variances provide relief for interior side yard setback, unit size, lot area and parking.

A public meeting about the minor variances was held on April 22, and notices were mailed out to applicable agencies and property owners within 60 metres of the lot.

A notice was also posted on the property.

No members of the public submitted comments or spoke during the meeting.

The application was initially presented to council on Dec. 4, but at that time the request was for four street townhouses, each with an additional residential unit in the basement.

The only minor variance sought at that time was to permit parking in the front yard, Wellington North senior planner Zachary Prince said during the public meeting.

“Since the last meeting in December, the applicant and the township have had further discussions and that resulted in this development being better classified as an … eight-unit stacked townhouse,” Prince said.

The design of the development hasn’t changed – just the classification.

“This will look and feel like a street townhouse,” Prince said, with four parking spots in garages and eight in driveways.

The main reason for changing the classification is because as an eight-unit stacked townhouse, the applicant could qualify for Canadian Mortgage and Housing Corporation funding that it would not qualify for under the initial classification, Prince noted.

The change in classification means additional minor variances are needed.

The minimum required interior side yard requirement is six metres (20 feet), where as the applicant is proposing interior side yards of 1.5 metres (five feet).

The minimum unit size permitted for bachelors or one bedrooms is 51 square metres (550 square feet) where as the proposed units are 40 square metres (430 feet).

The minimum lot area is 2,500 square metres (0.7 acres) but the proposed lots are 1,871 square metres (0.5 acres).

The proposal would fit in with existing bylaws if it were still classified as four townhouses with four additional residential units.

The property is zoned mixed use (MV1), which allows a range of residential uses including cluster townhouses and street townhouses with additional residential units.

It is designated as a residential transition area in Wellington County’s official plan.

It does not include floodplains, watercourses, shorelines, wetlands, valley slopes or other environmental features of interest to the Saugeen Valley Conservation Authority (SVCA), so permission from the conservation authority is not required, SVCA environmental planning technician Michael Orberle stated in an email to the township.

Wellington Source Water Protection also expressed no concerns with the application.

Township planners have no concerns with the requested relief and call the application “desirable and appropriate for the development of the subject property.”

In a report to council, planners stated, “Overall, planning staff’s opinion is that the requested variances are minor and appropriate for the use of the lot.”

Robin George profile image
by Robin George

Get Local News Delivered

Join our community of readers and get weekly updates on what matters most in Wellington County.

Success! Now Check Your Email

To complete Subscribe, click the confirmation link in your inbox. If it doesn’t arrive within 3 minutes, check your spam folder.

Ok, Thanks

Read More