County implementing improvements in response to incidents at Guelph buildings
GUELPH – If the walls could only talk.
Social services buildings aren’t simply bricks and mortar structures where people seek out Ontario Works assistance and housing supports.
They’re supposed to be safe places where people can go to share their stories and receive holistic attention, county social services administrator Luisa Artuso said at a March committee meeting.
But incidents within the past three years, including one a day before the March meeting, have threatened that mission and the safety of staff working in social service buildings located in Guelph and operated by the county.
The county is tasked by the province to manage social services for both the city and county.
Artuso spoke broadly at the meeting about an incident that led to entrance doors being locked at a social services building, and another resulting in a hold-and-secure lasting over an hour.
“We have seen an increase in situations that really do heighten the need to look at changes to make our staff safe,” Artuso told the committee.
According to the county there have been three total incidents: two in the month of February in 2020 and 2021, and another in March of this year.
“One was an incident between two members of the public in the lobby of 138 [Wyndham Street], one was a serious threat of violence, and one was a safety concern regarding a person attending the reception area,” human resources director Susan Farrelly stated in emailed responses to questions from the Advertiser.
“There were credible safety concerns for our employees and clients in the building, resulting in the lockdowns.”
Farelly noted each incident occurred at the county’s employment resource centre at 138 Wyndham Street, and affected the Ontario Works “help centre” at 129 Wyndham Street as well.
The incidents led to the county hiring London-based Threat Ready Inc. to assess the two Guelph locations, in addition to two in Fergus, at a tax-in cost of $37,685.
Security guard service from CSA Security Inc. was also contracted by the county for the Wyndham Street locations starting in January at a cost of $1,000 per week.
Escorted and unescorted site visits were completed by Threat Ready in Sept. 2022.
A final report provided to the county in December contained recommendations on how the county could improve the safety and security of its buildings.
Last month, the county denied the Advertiser’s March request for a copy of the sizeable Threat Ready assessment.
“We consider the Threat Ready assessment reports to be an internal and confidential document,” Farrelly wrote.
Farrelly stated the county would respond to questions, but was unwilling to provide copies “out of consideration of staff safety.”
Canadian Union of Public Employees (CUPE) local 973 vice president James Cassidy said the union represents county social services staff who brought forward safety concerns as far back as 2019.
“The Threat Ready assessment was a direct response from the [county] because of the safety concerns raised by the union members,” Cassidy told the Advertiser in an email, noting no formal grievances were filed.
The union and a Joint Health and Safety Committee were provided with a partial copy of the report, according to Cassidy, who said it was later reviewed at a special meeting.
The county did provide a reporter with a three-page document — previously circulated among county staff — dated May 29 and titled “Threat Ready Assessment Summary” that provided generic detail on the assessments and the county’s response.
“Key areas of focus include exterior and interior design features, parking areas, policies and training and video surveillance,” the document states of last year’s assessments.
The same document notes the county embarked on “an extensive and comprehensive” work plan addressing “corporate safety and security initiatives.”
In addition to contracting the security guard service, the document also notes the county has released staff polices, installed fencing, trimmed hedges to improve sightlines, added interior signage, implemented visitor badges and sign-in protocols, piloted de-escalation training, enhanced entrances, and upgraded interior lighting.
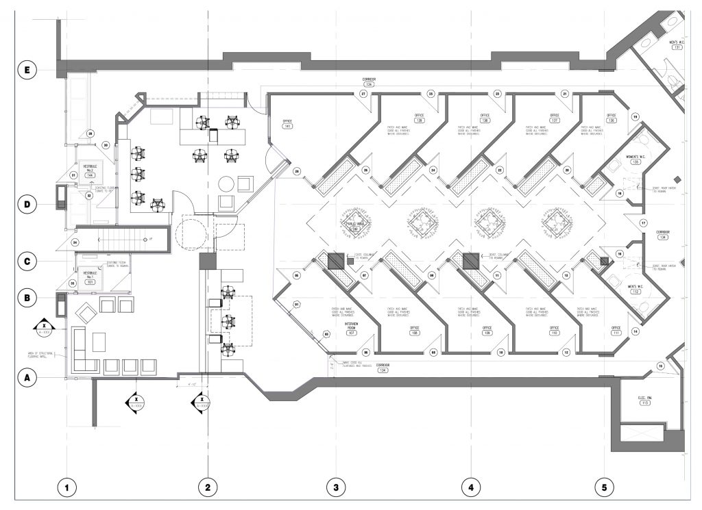
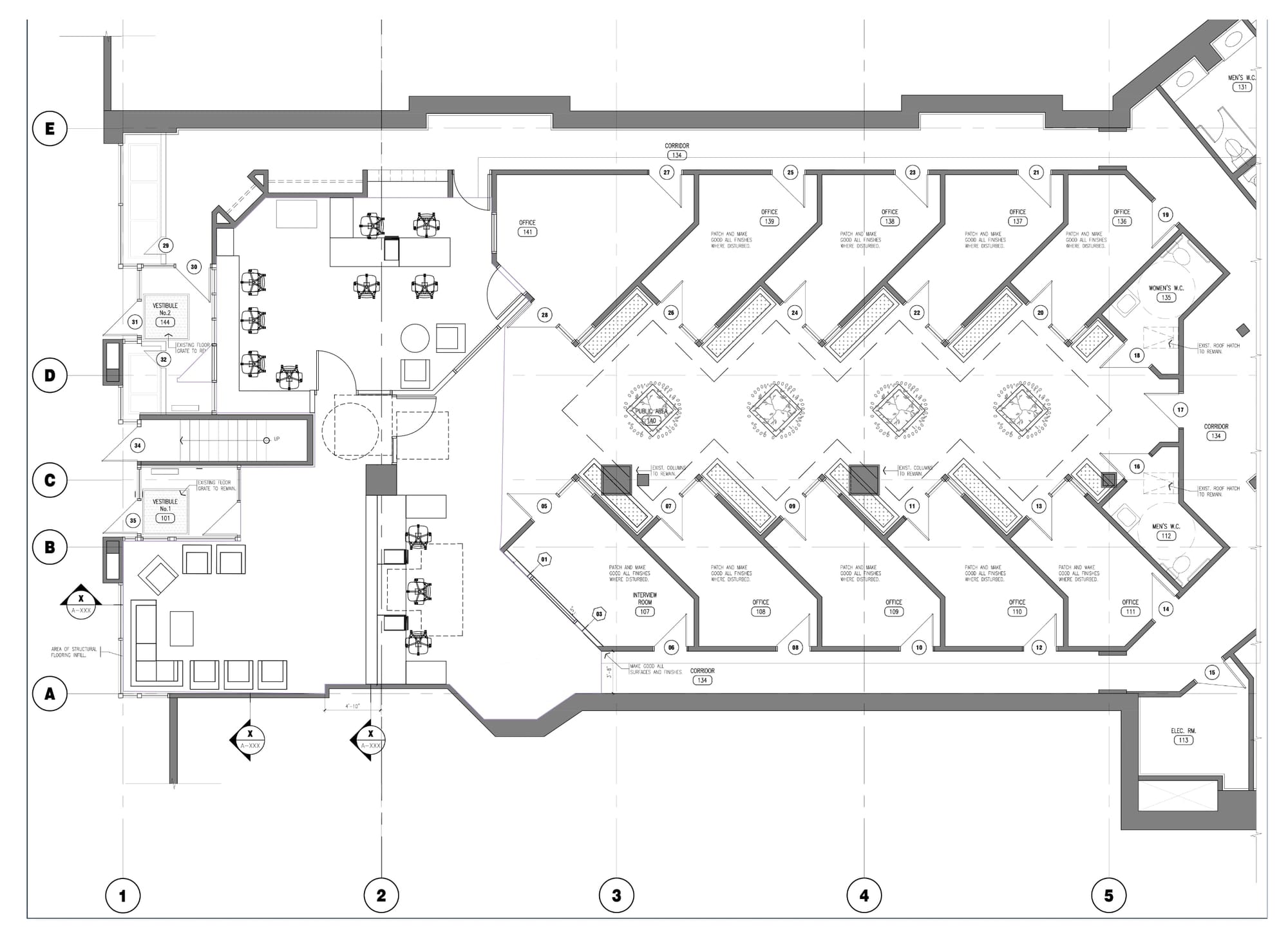
Although not a part of Threat Ready’s recommendations, according to Farelly, the county is redesigning the lobby and entranceway of 129 Wyndham Street in the interest of controlling movement within the building and protecting staff.

People entering will be immediately welcomed and remain in a waiting area. Staff will also be separated and protected by glass panels.
“Individuals can stay in that area until we can kind of assess how they are that day,” Artuso told the committee in March, speaking about the redesign.
The area would be made light, welcoming, comfortable and calming, the committee heard.
CAO Scott Wilson told the committee, “You can be assured, particularly our social services staff, work in a safe environment, as safe an environment as we can produce.”
It’s unclear what improvements are outstanding at each of the four buildings, but the county intends to have work completed by the end of the year, or in early 2024.
Cassidy said CUPE 973 and the county “have shared interests in the health, safety and wellbeing for its members [and] employees.
“The renovations and the continued work of the Joint Health and Safety Committee will be crucial to address safety concerns as they arise ensuring a safe space to work.”