Council approves zoning, official plan changes for Elora grocery store
ELORA – Centre Wellington council has opened the door for a new grocery store in Elora.
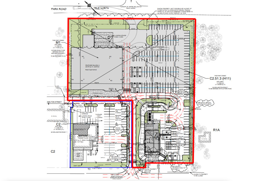
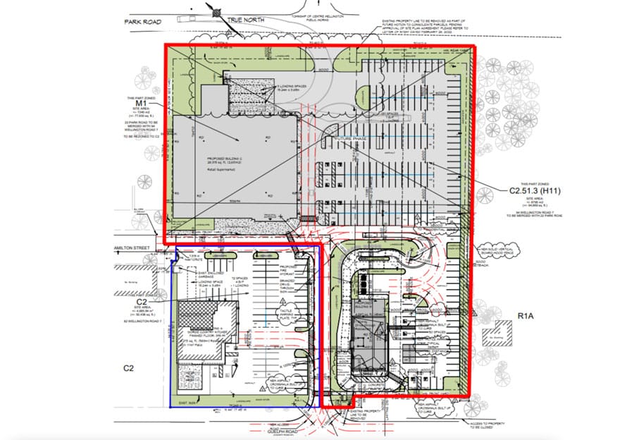
Manager of planning services Marianna Iglesias told council on Sept. 30 there are actually three parcels of land involved in a proposed commercial development: 22 Park Road, 92 Wellington Road 7 and a portion of 82 Wellington Road 7, which are beside each other despite the different street addresses.
The Gorge Restaurant is located at 82 Wellington Road 7 and the other two sites are vacant.
[related]
The overall redevelopment consists of two phases.
Phase one includes a McDonald’s drive-thru restaurant. This part of the plan was previously approved and is now under construction.
Phase two includes a proposed grocery store at the rear of the site accessed from Park Road.
The 22 Park Road property is the subject of an official plan amendment and a zoning bylaw amendment.
The site would have a mutual access driveway from Wellington Road 7 and could also be accessed from Park Road.
The site is zoned industrial. The owner is seeking to zone it highway commercial.
Because the property is relatively small, “removal from the industrial designation would have negligible impacts on the employment land base,” Iglesias wrote in her report.

“Furthermore, a range of highway commercial uses already exists in this area on a major arterial road, so conversion to highway commercial would be compatible and consistent with the adjacent area.”
Wellington County and the province had no objections, other than the county required the property owner install a left-turn lane from south-bound Wellington Road 7, which has been done.
Iglesias said a holding provision on 92 Wellington Road 7 would be addressed during site plan application.
Debra Kropf, owner of the Geddes Street Market, spoke against the proposal at a public meeting in July, worrying that a big chain grocery store could put her little independent store out of business.
But Iglesias reminded council that “we don’t zone for a business; we zone for use. Market competition is beyond the scope of staff.”
Council approved the zoning and official plan changes.